Home
Work
Commercial
Residential
Interiors
About
Client
Contact
Home
Work
Commercial
Residential
Interiors
About
Client
Contact
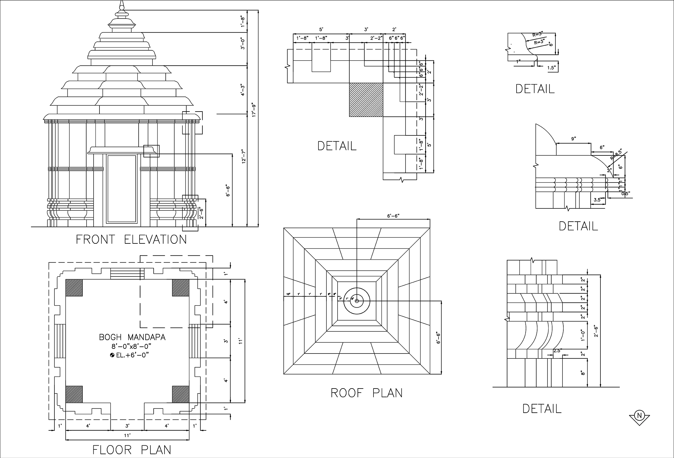
Jagannatha Temple
Location : Hyderabad
Status : Completed
Area :